网站首页 > 三僚曾真君 > 阳宅作品案例
三僚曾真君:成氏祠堂风水布局设计
现代祠堂从整体布局上也要讲坐势、朝案。祠堂建筑首先必须观察地形、地势和面积,这里也应该考虑祠堂建筑群的体形组合以及空间的处理,以地形、地势的特点作适当的布置,因地制宜。把美的建筑形式衬托出来,获得良好的艺术效果。
它不仅要满足祠堂功能的要求还要考虑其它配套设施的相互关系、比例、尺寸等,所以说祠堂选址理想模式:地宽基平,背山依水,交通方便,景色优美,同时考虑顺应自然,利用自然,装点自然。
祠堂的营造过程中,风水师无疑扮演相当重要的角色,每个修造步骤如出火、起基、代梁、上梁、安龛、入火。十分讲究规矩。如祠堂照壁是正对大门的一堵墙,大门和两边的侧门限定了祠堂门前广场的空间,按照风水学说。照壁可以使得祠堂建筑内的“气”能够聚而不散,是很有讲究的。有些祠堂大门前有泮池:即水池。泮池是采用过去学宫中礼仪性的设施,暗中希望自己家族有更多的子孙“进学”、“入泮”成为科举人才;另一方面,民间还认为水池是“聚财”的象征,同时泮池也能起到消防灭火的要求。
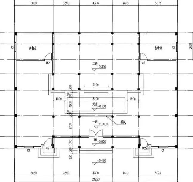
在规模上,祠堂建筑的组织和布局是有规制的,只是规模大小各有不同,但总体布局有共同之处,大体上可分为门前广场、戏台、大门、围墙、天井、享堂、拜堂、寝堂、辅助用房等几个部分。是根据其家族的经济实力而定。
一般祠堂以“四点金”和“八间头”为基本型制,所谓“四点金”就是小型三合院和四合院,三合院通常是正厅三开间双坡硬山顶,抬梁式与穿斗式相结合木结构,厢房双坡两层楼屋硬山。“四合院”通常正房及到座均为三开间,左右各一开厢房,中间围合着天井。大门位于倒座的当心间,大门前面没有院落。“八间头”的平面与“四点金”基本相同,只是左右是厢不是过廊,而是用格扇封闭成一间厢房,连上下正房共有八个封闭开间俗称“八间头”。另外也有“三纵三横”的布局,建筑形式以硬山为主,中路为三开间三进深的建筑群。由于社会环境及宅基地的局限,现在有些新建的祠堂一般只有大门和四周高墙围合成一个封闭的空间,进门一天井,一间享堂。
在款式上,瓦作分大式,小式两种做法。歇山与硬山各项瓦顶做法属于大式建筑做法;硬山、悬山例属小式做法,所定规矩尺寸都是按五檩前山廊山柱式大木做法例而定。
中国古代建筑屋顶有庑殿顶、歇山顶、悬山顶、硬山顶、攒山顶、卷棚顶、盝顶等。此外还有不同屋顶的组合形式及重檐形式。一般祠堂均是硬山、悬山砌法。故祠堂两山山墙。有随大小式建筑硬山与悬山房分别墀头风与五花成造两种做法;硬山房屋顶只有前后两面坡,一条大脊和四条垂脊,两端的山檐与山墙墙头齐平。山面裸露没有什么变化,显得质朴坚硬,故称
之硬山屋顶。